165 Earthwood Lane, San Luis Obispo, CA 93401 (MLS # SC26064580)

Price $1,025,000
Status Active
Beds 3
Baths 2.25 Baths
Home size 1,808 sqft
Lot Size 3,899 sqft
Days on Market 45
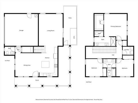
Welcome to 165 Earthwood Lane, a nearly new home in the highly sought-after Avila Ranch community of San Luis Obispo; known for its welcoming atmosphere, friendly neighbors, and thoughtfully designed surroundings. Built in 2023, this 3-bedroom, 2.5-bath residence offers approximately 1,808± sq ft of beautifully appointed living space, complete with modern finishes and owned solar. The light-filled main level features 10-foot ceilings, wood-look tile flooring, and an open-concept design that seamlessly connects the living room to the outdoor patio, perfect for effortless indoor-outdoor living. The kitchen is both stylish and functional, showcasing quartz countertops, a subway tile backsplash, gray shaker cabinetry, a contrasting white island with bar seating, stainless steel appliances, and a spacious pantry. It flows naturally into the adjacent dining area, ideal for both everyday living and entertaining. Upstairs, the primary suite offers a peaceful retreat with large windows, a walk-in closet, and a well-appointed bathroom featuring dual vanities and a tile shower. Two additional bedrooms share a thoughtfully designed adjoining bathroom with dual sinks and a separate tub and shower area. A dedicated laundry room with washer and dryer, along with a hallway linen closet, adds everyday convenience. Outdoor living is equally inviting, with a charming, covered wrap-around front porch and a low-maintenance enclosed side yard complete with a paver patio, perfect for relaxing or hosting. Ideally located just steps from Sunny Vista Park, residents can enjoy multiple play structures and a basketball court right outside their door, enhancing the home's appeal for recreation and community connection. Additional highlights include a main-floor powder room, under-stair storage, an attached two-car garage, electric heating and air conditioning, and energy-efficient solar. Located near parks, scenic trails, shopping, and dining, this home offers the very best of Central Coast living in one of San Luis Obispo's most beloved neighborhoods.
Property Type(s): Single Family
Last Updated 4/15/2026 Tract San Luis Obispo(380)
Year Built 2023 Community SLO - San Luis Obispo
Garage Spaces 2.0 County San Luis Obispo

SCHOOLS

Elementary School Los Ranchos
Jr. High School Laguna
High School San Luis Obispo

Price History

Prior to Apr 15, '26 $1,049,000
Apr 15, '26 - Today $1,025,000

Additional Details

AIR Electric, Heat Pump
AIR CONDITIONING Yes
APPLIANCES Disposal, Dryer, Electric Range, Microwave, Refrigerator, Washer, Water Heater
AREA SLO - San Luis Obispo
CONSTRUCTION Fiber Cement
EXTERIOR Rain Gutters
GARAGE Attached Garage, Yes
HEAT Electric, Heat Pump
HOA DUES 50|Monthly
INTERIOR Recessed Lighting, Walk-In Closet(s)
LOT 3899 sq ft
LOT DESCRIPTION Landscaped
LOT DIMENSIONS 3900
PARKING Attached, Garage
POOL DESCRIPTION None
SEWER Public Sewer
STORIES 2
SUBDIVISION San Luis Obispo(380)
UTILITIES Electricity Connected, Sewer Connected, Water Connected
VIEW DESCRIPTION None
WATER Public

Location

 

Contact us about this Property

 / 
We respect your online privacy and will never spam you. By submitting this form with your telephone number you are consenting for Amy Daane to contact you even if your name is on a Federal or State "Do not call List".

Listed with Real Broker

The multiple listing data appearing on this website, or contained in reports produced therefrom, is owned and copyrighted by California Regional Multiple Listing Service, Inc. ("CRMLS") and is protected by all applicable copyright laws. Information provided is for viewer's personal, non-commercial use and may not be used for any purpose other than to identify prospective properties the viewer may be interested in purchasing. All listing data, including but not limited to square footage and lot size is believed to be accurate, but the listing Agent, listing Broker and CRMLS and its affiliates do not warrant or guarantee such accuracy. The viewer should independently verify the listed data prior to making any decisions based on such information by personal inspection and/or contacting a real estate professional.

Based on information from California Regional Multiple Listing Service, Inc. as of 4/21/26 12:51 PM PDT and /or other sources. All data, including all measurements and calculations of area, is obtained from various sources and has not been, and will not be, verified by broker or MLS. All information should be independently reviewed and verified for accuracy. Properties may or may not be listed by the office/agent presenting the information

This IDX solution is (c) Diverse Solutions 2026.

Email a Friend

LATEST CENTRAL COAST LISTINGS

 

LATEST AVE PROPERTIES

1295 Ironbark Sunset photo

1295 Ironbark Street, San Luis Obispo, CA 93401

  • Beds: 3
  • Baths: 2
  • 1600 sq ft
  • Single Family Home
  • $1,298,000

184 Bridgegate Lane, Paso Robles, CA 93446

  • Beds: 3
  • Baths: 2
  • 1281 sq ft
  • Single Family Home
  • $708,000