1 W Branch Street, Nipomo, CA 93444 (MLS # SC25072155)

Price $715,900
Status Active
Beds n/a
Baths 0 Bath
Home size n/a
Lot Size 1.49 ac
Days on Market 196
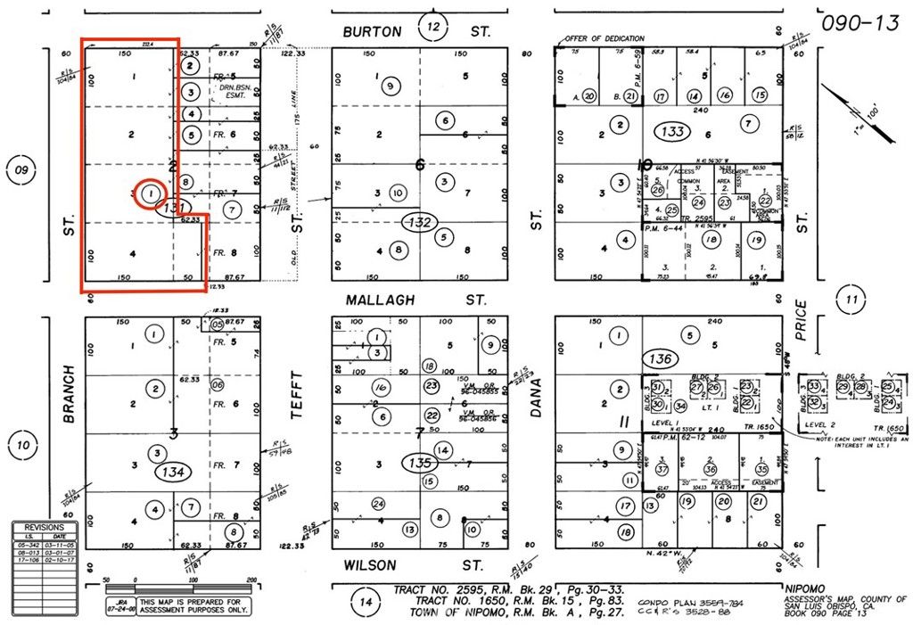
This property is situated on the corner of W Branch Street & North Mallagh Street. The property is bounded on three sides by the Burton "paper" street, Branch St, and Mallagh St. The "paper" Burton St is a dedicated County right-of-way and not a finished street. Directly across the street from the subject property are existing homes. The property is zoned Office Professional which may be developed as commercial or residential or a mix of both. The land may be developed in a number of ways. The Workforce Housing Subdivision ordinance allows for high-density, individually owned residential properties, with lots as small as 1000 square feet. It may also be developed as high density multi-family units as high as 38 units per acre. See Supplements for explanations on these two alternative development opportunities. Part of the value of this property for residential is its proximity to one of the most popular restaurants on the central coast, Jockos Steakhouse. The land is flat and is within the Nipomo Urban Reserve Line.
Property Type(s): Lot/Land/Acreage
Last Updated 4/3/2025 Tract Nipomo(340)
Community Nipomo County San Luis Obispo

Additional Details

AREA Nipomo
HOA DUES 0
LOT 1.49 acre(s)
LOT DESCRIPTION 36-40 Units/Acre, Flat, Level, Near Public Transit, Rectangular Lot, Street Level
SEWER Public Sewer
SUBDIVISION Nipomo(340)
UTILITIES Cable Available,Electricity Available,Natural Gas Available,Phone Available,Sewer Available,Water Available
VIEW Yes
VIEW DESCRIPTION Hills
WATER Public
ZONING Office Professional

Location

 

Contact us about this Property

 / 
We respect your online privacy and will never spam you. By submitting this form with your telephone number you are consenting for Amy Daane to contact you even if your name is on a Federal or State "Do not call List".

Listed with Greater Heights Financial & Realty Inc

The multiple listing data appearing on this website, or contained in reports produced therefrom, is owned and copyrighted by California Regional Multiple Listing Service, Inc. ("CRMLS") and is protected by all applicable copyright laws. Information provided is for viewer's personal, non-commercial use and may not be used for any purpose other than to identify prospective properties the viewer may be interested in purchasing. All listing data, including but not limited to square footage and lot size is believed to be accurate, but the listing Agent, listing Broker and CRMLS and its affiliates do not warrant or guarantee such accuracy. The viewer should independently verify the listed data prior to making any decisions based on such information by personal inspection and/or contacting a real estate professional.

Based on information from California Regional Multiple Listing Service, Inc. as of 10/14/25 3:08 PM PDT and /or other sources. All data, including all measurements and calculations of area, is obtained from various sources and has not been, and will not be, verified by broker or MLS. All information should be independently reviewed and verified for accuracy. Properties may or may not be listed by the office/agent presenting the information

This IDX solution is (c) Diverse Solutions 2025.

Email a Friend

LATEST CENTRAL COAST LISTINGS

 

LATEST AVE PROPERTIES

1079 Pauline Way, San Luis Obispo 93401-CONDO

  • Beds: 3
  • Baths: 3
  • 1759 sq ft
  • Condo, Single Family Home
  • $925,000

4635 Deer Creek Way, Paso Robles, CA 93446 – 1 Acre

  • Beds: 4
  • Baths: 3
  • 2681 sq ft
  • Ranch, Ranchette, Single Family Home
  • $875,000