4345 Cayucos Ave Ave, Atascadero, CA 93422 (MLS # 260005404SD)

Price $735,000
Status Active
Beds 4
Baths 3 Baths
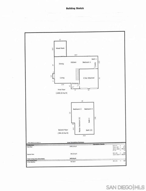
Home size 1,875 sqft
Lot Size 7,802 sqft
Days on Market 23
Beautifully updated! This thoughtfully remodeled home with over 1,800 sf, features 4 bedrooms and 3 bathrooms. The home is in a desirable Atascadero neighborhood, close to the revitalized and vibrant downtown and is only 20 minutes to SLO! The home features open-concept living and the downstairs bedroom features a separate entrance and could be utilized as a guest suite, private office or rental income. Too much to list! This home has been stunningly remodeled from top to bottom, with new doors, new double-paned vinyl windows, new vinyl plank flooring throughout, new interior paint and new light fixtures including stylish recessed lighting. The kitchen delivers all new granite countertops, cabinetry and appliances. Upstairs you will find a spacious primary bedroom with en suite bath with new tiled shower including subway tile accents and all new fixtures. The upstairs includes 2 more guest rooms with new doors and windows and also a remodeled bathroom. The exterior features new stucco and paint along with new doors, all new fencing, fresh landscaping with drought resistant plants including installed automatic drip system. Enjoy dinner in the backyard on the newly built deck. The 30-year roof was installed in 2021. The two-car garage offers separate access to the main house or the guest unit with a brand-new concrete driveway and new garage doors. Bring your RV or lake toys"”there's plenty of side yard space for an RV, boat, or trailer. PRICED TO SELL!
Property Type(s): Single Family
Last Updated 3/19/2026 Year Built 1972
Garage Spaces 2.0 County San Luis Obispo

Price History

Prior to Mar 13, '26 $779,000
Mar 13, '26 - Mar 19, '26 $749,000
Mar 19, '26 - Today $735,000

Additional Details

AIR Central Air
AIR CONDITIONING Yes
APPLIANCES Dishwasher, Disposal, Gas Oven, Gas Range, Gas Water Heater
CONSTRUCTION Stucco
FIREPLACE Yes
GARAGE Attached Garage, Yes
HEAT Forced Air, Natural Gas
LOT 7802 sq ft
LOT DIMENSIONS 59x110x64x110
PARKING Attached, See Remarks
POOL DESCRIPTION None
STORIES 2
VIEW Yes
VIEW DESCRIPTION Neighborhood
WATER Public

Location

 

Contact us about this Property

 / 
We respect your online privacy and will never spam you. By submitting this form with your telephone number you are consenting for Amy Daane to contact you even if your name is on a Federal or State "Do not call List".

Listed with Congress Realty, Inc

The multiple listing data appearing on this website, or contained in reports produced therefrom, is owned and copyrighted by California Regional Multiple Listing Service, Inc. ("CRMLS") and is protected by all applicable copyright laws. Information provided is for viewer's personal, non-commercial use and may not be used for any purpose other than to identify prospective properties the viewer may be interested in purchasing. All listing data, including but not limited to square footage and lot size is believed to be accurate, but the listing Agent, listing Broker and CRMLS and its affiliates do not warrant or guarantee such accuracy. The viewer should independently verify the listed data prior to making any decisions based on such information by personal inspection and/or contacting a real estate professional.

Based on information from California Regional Multiple Listing Service, Inc. as of 3/29/26 2:03 PM PDT and /or other sources. All data, including all measurements and calculations of area, is obtained from various sources and has not been, and will not be, verified by broker or MLS. All information should be independently reviewed and verified for accuracy. Properties may or may not be listed by the office/agent presenting the information

This IDX solution is (c) Diverse Solutions 2026.

Email a Friend

LATEST CENTRAL COAST LISTINGS

 

LATEST AVE PROPERTIES

785 Islay St, San Luis Obispo, CA 93401

  • Beds: 2
  • Bath: 1
  • 853 sq ft
  • Single Family Home
  • $1,025,000

2475 Victoria Ave., #203, San Luis Obispo, CA 93401

  • Beds: 2
  • Baths: 2
  • 1244 sq ft
  • Condo, Townhouse
  • $739,000