3970 Orcutt Rd, San Luis Obispo, CA 93401 (MLS # SC26059988)

Price $3,000,000
Status Active
Size 10,000 sqft
Lot Size 106.00 ac
Days on Market 54
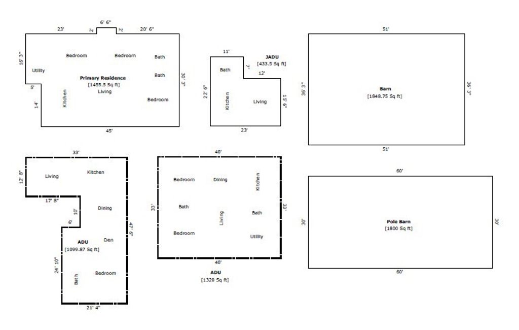
Edna Ranch offers a rare opportunity to partner in a legacy asset that blends classic ranch living with significant long-term development potential"”just minutes from downtown San Luis Obispo. This offering is for a 50% joint venture interest, ideal for an investor seeking both current income and future upside. Set across expansive acreage in the heart of Edna Valley, the property features sweeping panoramic views of the Cuesta Mountain Range and the iconic Nine Sisters. The ranch is improved with four existing residences, providing immediate utility and income potential. The land is rich with natural features, including three reservoirs, two creeks, mature trees, and rolling terrain that enhances both privacy and scenic appeal. Water resources are supported by three productive wells with approximate yields of 20, 14, and 5 gallons per minute. Two all-weather access roads from Orcutt Road provide convenient and reliable access throughout the property. Strategically positioned adjacent to city limits and within the City's Sphere of Influence, the property is identified for future annexation"”currently anticipated around 2028 per LAFCO guidance"”creating a compelling long-term investment opportunity. A prior ownership vision contemplated subdivision into 8-9 legal parcels, with remaining acreage suited for higher-density residential development, including both multifamily and single-family housing. This offering represents a 50% joint venture interest with existing ownership, with an investment target of $3,000,000.
Property Type(s): Commercial
Last Updated 3/26/2026 Year Built 0
Community SLO - San Luis Obispo County San Luis Obispo

Price History

Prior to Mar 26, '26 $6,000,000
Mar 26, '26 - Today $3,000,000

Additional Details

AREA SLO - San Luis Obispo
LOT 106 acre(s)
LOT DESCRIPTION Agricultural
LOT DIMENSIONS 106
STORIES 1
WATER Well

Location

 

Contact us about this Property

 / 
We respect your online privacy and will never spam you. By submitting this form with your telephone number you are consenting for Amy Daane to contact you even if your name is on a Federal or State "Do not call List".

Listed with Avila Beach Realty Inc.

The multiple listing data appearing on this website, or contained in reports produced therefrom, is owned and copyrighted by California Regional Multiple Listing Service, Inc. ("CRMLS") and is protected by all applicable copyright laws. Information provided is for viewer's personal, non-commercial use and may not be used for any purpose other than to identify prospective properties the viewer may be interested in purchasing. All listing data, including but not limited to square footage and lot size is believed to be accurate, but the listing Agent, listing Broker and CRMLS and its affiliates do not warrant or guarantee such accuracy. The viewer should independently verify the listed data prior to making any decisions based on such information by personal inspection and/or contacting a real estate professional.

Based on information from California Regional Multiple Listing Service, Inc. as of 5/11/26 10:56 PM PDT and /or other sources. All data, including all measurements and calculations of area, is obtained from various sources and has not been, and will not be, verified by broker or MLS. All information should be independently reviewed and verified for accuracy. Properties may or may not be listed by the office/agent presenting the information

This IDX solution is (c) Diverse Solutions 2026.

Email a Friend

LATEST CENTRAL COAST LISTINGS

 

LATEST AVE PROPERTIES

241 San Miguel St. #2, Avila Beach, CA 93424

  • Bed: 1
  • Baths: 1.5
  • 732 sq ft
  • Condo
  • $949,500

265 T-Diamond Way, Templeton, CA 93465

  • Beds: 3
  • Baths: 2.5
  • 1419 sq ft
  • Single Family Home
  • $749,000